Suitable for goods and heavy parcels.
MACHINE ROOMLESS FREIGHT ELEVATOR - TECHNICAL SPECIFICATIONS
Capacity
Speed
Entrance
Door Opening Size
Car Size
Shaft Size
Pit Depth
Overhead Height
Machine Room Height
(kg)
(m/s)
OP x OH
CW x CD x CH
SW x SD
(mm)
min
1500
0.5
Four Panels Side Opening
1400*2100
1700*1900*2200
2800*2500
4500
N.A
1.0
2000
1600*2100
1900*2100*2200
3000*2700
4600
3000
1700*2100
2200*2500*2200
3400*3100
1600
MACHINE ROOM FREIGHT ELEVATOR - TECHNICAL SPECIFICATIONS
2600*2500
4200
2200
2850*2800
3250*3200
4300
2300
5000
Four Panels Center Opening
2000*2100
2700*3200*2200
3850*4000
2500
MACHINE ROOMLESS FREIGHT ELEVATOR- OVERHEAD LAYOUT
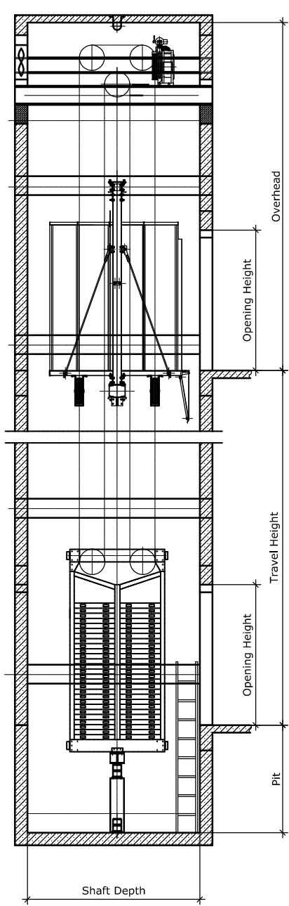
MACHINE ROOMLESS FREIGHT ELEVATOR- SHAFT ELEVATION
MACHINE ROOMLESS FREIGHT ELEVATOR- SHAFT LAYOUT
MACHINE ROOM FREIGHT ELEVATOR- OVERHEAD LAYOUT
MACHINE ROOM FREIGHT ELEVATOR- SHAFT ELEVATION
MACHINE ROOM FREIGHT ELEVATOR- SHAFT LAYOUT